
優雅生活?現代肌理融合自然能量,刻畫豐盈輕奢調性

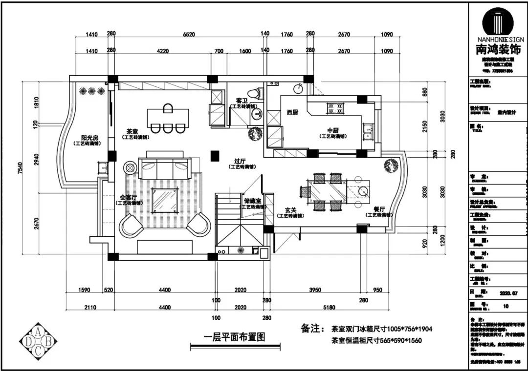
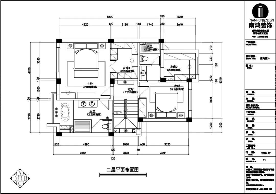
項目信息 / 地址:鳴翠藍灣 城市:中國 杭州 戶型:排屋 面積:300㎡ 風格:現代輕奢 設計施工:浙江南鴻裝飾 本案為300方現代輕奢風格的疊排設計。業主希望居住的空間能夠兼具明朗和優雅,家人也能在此自在行動、溫馨交流。 現代的黑白灰作為主框架,木色和大地色佐配,共同營造輕雅的空間氛圍,同時設計還使用了綠色、橘色等跳色來做居室內的視覺亮點,增添藝術感的格調。 戶型方案<< 客廳 Living Room / 中正的客廳空間,直曲線和諧交融,平衡的線條感拉出沉穩有力的框架。金屬材質裝飾上下,室內每一寸細節的鋪陳,都在展示著輕奢美學的魅力。 黑白灰的色彩低調烘托著現代時尚氛圍,營造從容雅正的居家格調。孔雀綠單人沙發椅成為空間中頗有趣味的一筆,室內光感豐沛,映照得所有家具熠熠生輝。 生活的豐盈和精彩盡數融匯在精簡的設計筆觸之中,柔和的木色與大地色呈現自然的力量與意境,讓居家生活回歸到本真之中。 電視背景墻的材質是巖板,華麗的石材用來鋪墊輕奢格調是再合適不過了。 客廳與茶區融合為一,構建起了方便交流互動的“社交模式”,另一方面也不妨礙居者自主切換為各自獨立的“陪伴模式”。 餐廳 Dining Room / 餐廳延續了低調平和的大地色系,室內立面為避免白墻的單調而使用了素雅的墻布裝飾,島臺的加入方便了備餐、收納、洗手以及各種電器的使用,實用的功能有助于打造井井有條的就餐場景。 廚房 Kitchen / 白與深灰搭配的經典款式廚房設計,突出一個干凈利落! 茶室 Tearoom / 開放式茶室空間,精致的茶桌、擺件搭配溫潤木作,還有美麗的瓷器花藝,脫俗的氣質讓這里成功變為一處遠離塵囂的理想桃源。 樓梯 Stairs / 樓梯用深色的石材與玻璃材質塑造形體,并且為了照顧家里老人的起居,還安裝了無障礙升降椅裝置。 過道墻面用裝飾畫收縮視覺中心,增強了空間的趣味性,也進一步豐富了居住者的居家體驗。 臥室 Bedroom / 主臥摒棄繁雜,憑借中性的色彩和簡潔的線條塑造了空間的平和氣質,背景墻通過硬包與軟包的拼接制造出了視覺層次。 次臥沿用優雅沉靜的色調,舒適靜謐、輕松自在的氛圍感借由色彩緩緩延伸開去。 衛生間 Bathroom / 衛浴空間巧妙地用石材、玻璃以及輕盈的窗簾來打造通透的質感,光線折射出夢幻光影,讓氛圍更為悠長。淋浴區、馬桶區與浴缸、臺盆分離來提升空間的實用性,各個功能相互獨立,互不打擾,深刻詮釋設計的周到關照。





















免費
免費申請戶型規劃
專屬設計師免費1對1全程服務
已經有3768人申請
24小時免費咨詢電話
400-8800-618
你家預算
108080元