
新作 | 黎明前的序曲
白晝之光,
豈知夜色之深。
by 尼采
很多人酷愛暗黑色系。深沉、高雅,是它的代名詞。它站在亮與白晝的對立面,難以捉摸難以定性,卻時時散發出一種迷人而深邃的奇特魅力。
我們說,人內在的情感總是需要與之對等的空間去承載。暗黑色空間與生俱來的幽邃氣質,恰好能與居住者祈盼安穩、平靜的內心,發生強烈的共鳴,人與空間便因此緊緊維系在了一起。

本案因屋主的喜好,大膽使用暗黑色系來搭建一方極簡風場域。設計凝練至簡,以黑白兩色為基調構筑靜謐場所,幫助居者疏解焦躁,安定心緒,繼而能夠從容邁步。
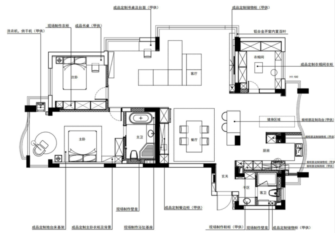
原始結構有5房,項目最終保留2室,次臥1間做衣帽間,中心部分全部打通作為全開放式客餐廚領域,并融入健身室、影音室與書房的功能。朗闊的復合式家庭活動區塊,在垂直、水平向量上均化顯出更大比例,滿足夫婦二人悠閑自處的同時,又給予他們充分的社交自由。

配燈方面,以體積小、簡潔的嵌燈為直接照明,保留空間最純粹的感受。頂、壁還有臥室地臺都做暗藏的燈線,無形布設氛圍和暖意。

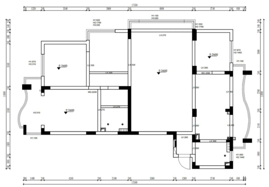
原始結構

平面方案
CASE APPRECIATION
▽
客廳


以互動性為主旨建構的全開放式客餐廚區域是毋庸置疑的全屋核心,光線透過潔白夢幻簾映入,在黑白的體塊間,顯現悠敞境地。材質、光影、空間共融交互,呈現出自然朗凈又無比松弛的狀態。靜寓一域,自在遐思。


頂地利落直爽的線條,筆筆勾畫空間極致簡約的形態。雖是包裹大量的暗色,因著充足的光線和通透的布局,室內并不顯昏暗、促狹。電視背景設計黑色漆面柜體懸浮,電視柜則貼地,退出距離,保有更多呼吸感。


客廳中央這組雙面模塊沙發占據視線重心,并延伸至書房領域,兼做軟隔斷。純白的外觀打造輕盈感,模塊組合的形式靈活度極高,可根據不同情景需求隨時調整。場域兩側分別規劃有投影和電視兩種影音模式,雙向面島型沙發完美契合空間,優雅書寫全自由體驗。
黑白兩色簡單卻深刻的對比、交織,映襯出空間寧靜而安然的氣質。整體空間高度統一的調性,只讓人沉醉于其中,忘卻時間的流逝。 餐廳


設計以人為本,圍繞著居者本身的生活而構建。靈活順暢的動線將場景串聯,餐區與島臺平行推出,如咖啡廳般的開放式餐廚場域,勾勒全然通透樣態。

島臺置入儲物空間,豐富場景機能。健身區的鏡面折射光線,進一步放大場域寬闊感。
廚房


對于喜愛健身的屋主來說,簡單輕食是習慣,日常餐食多以蒸、煮、拌的形式,較少產生油煙,因此廚區墻面我們也大膽地使用藝術涂料進行裝飾,粗糲質感刻畫生動樸拙氛圍。隱形式儲物設計和嵌入式廚電,帶來一氣呵成的流暢感。
書房

開放式書房的設計別出心裁,定制一處流動感形態銀色不銹鋼材質長桌,與四周暗色環境相碰撞,以突破傳統的形式,把家襯得更有質感。搭配經典Zig Zag Chair,幽靜的藍點綴其間,傳遞復古時尚感受。
臥室


海子說,面朝大海,春暖花開。那么面朝錢塘江,大概過的也是同樣一種幸福悠閑的人生吧~
主臥以落地窗收攬江景,晴空萬里碧波搖蕩,只是靜坐向外遙望,便得遁世之閑情,收獲人生最寶貴的享受。


深沉的黑一路從地臺延伸至墻,到柜面和房門,視線
免費
免費申請戶型規劃
專屬設計師免費1對1全程服務
已經有3768人申請
24小時免費咨詢電話
400-8800-618
你家預算
108080元