
杜甫新苑149㎡ | 井然況味,舒適宅居

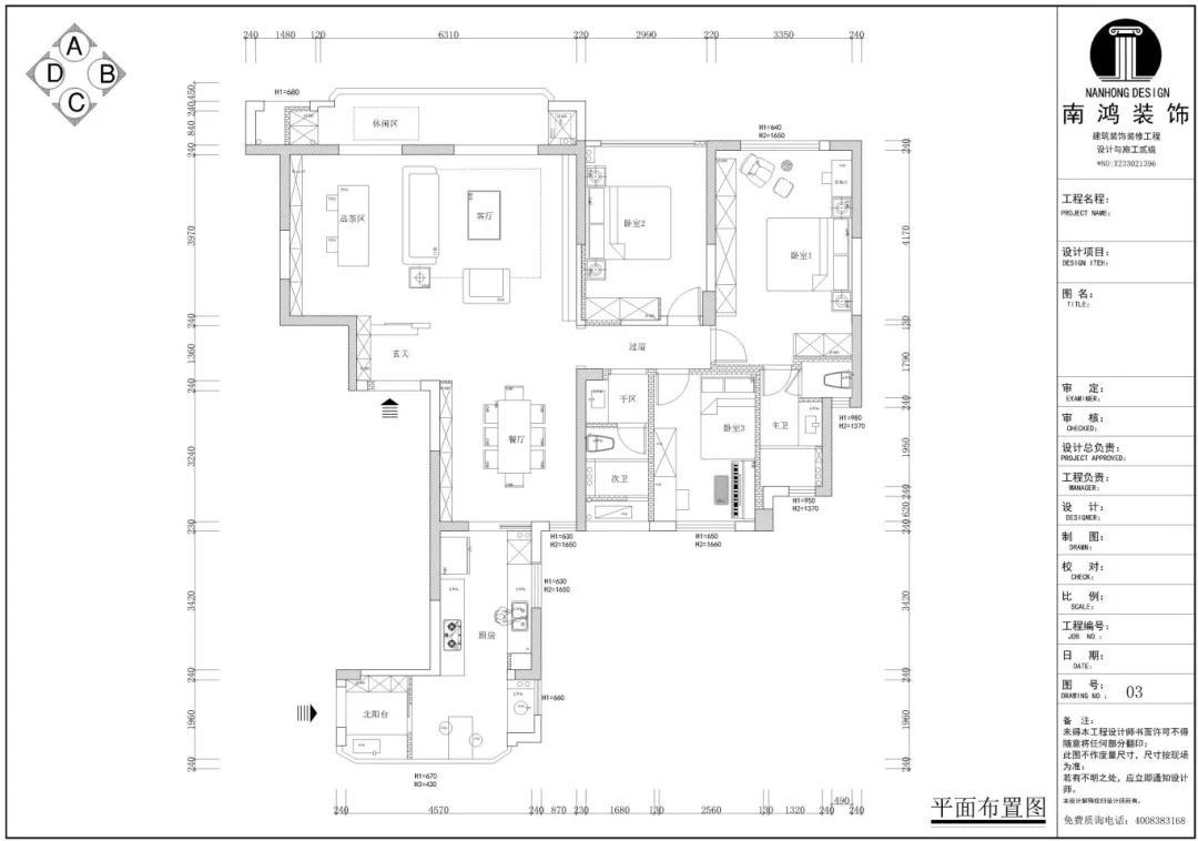
項目信息 PROJECT INFORMATION 地址/ 杜甫新苑 城市/ 中國 杭州 戶型/ 三室兩廳 面積/ 149㎡ 風格/ 現代輕奢 設計施工/ 浙江南鴻裝飾 作品前言. ABOUT HOME 中性色構筑的空間內,理性脈絡漸現生活的優雅格調。 本案是杭城一套回遷房項目。空間設計以功能為導向,簡約線條框塑整體,依序填充細節,為居者量身打造出屬于他們的場域氣度。 空間色彩搭配以黑白灰為主體,加上溫潤的木色,讓視覺呈現更為低調內斂,也讓家更加的純粹。 設計將居者對生活的愛與希冀匯聚于居室,脫離色彩和材料的堆砌,讓家回歸到居住的本質。外界紛紛擾擾,回到這里,便能卸下所有的防備,享受真正的寧靜與放松。 戶型設計. LAYOUT DESIGN 實景呈現. CASE APPRECIATION No.1 玄關 玄關利用石材和玻璃設下隔斷,并未做滿,保持視線與光線的貫通。再搭配木板和花器,勾勒生動美麗的端景。玄關柜消去把手,為居室鋪墊出利落的前章。 No.2 客廳 客廳無界式納入陽臺與書房,推生自由感、通透感,帶來優秀的場景互動。開放式的架構中,不同區域和諧統一,但又分明秩序井然,穩健地展開家之畫卷。 巖板電視背景墻映刻出高級質感,搭配內嵌展示格,射燈焦距美妙光影,給予空間更深的層次感。石材與木質有序結合,營造輕奢優雅的生活氛圍,讓舒適與品質交疊共生。 灰色的主沙發色澤柔潤,輪廓亦是簡練有型。空間充分展現無主燈設計的魅力,創造出虛實相生的意境。 書房與客廳結合,書桌后打造滿墻通頂的儲物柜,玻璃與實體柜門穿插分布,視覺上更顯輕盈通透。 No.3 餐廳 餐廳利用硬包結合拉槽和燈帶,構造簡約大氣的背景。另一側規劃到頂黑灰色結合的餐邊柜,方便維持餐區日常整潔,亦能充當水吧臺使用,讓動線更簡潔。石材、皮藝的光澤質感,在光影的映襯下愈發顯得生動和立體。 No.4 廚房 北向廚房區域較為狹長,設計依建筑結構平行式排布櫥柜,高效利用空間,地柜+吊柜的組合提升儲物量能。沿窗擺放休閑木桌椅,一壺清茶一卷書,安享閑情與雅致。 No.5 臥室 主臥延續公領域的硬包及木質元素,保持整體調性的統一及結構的明確清晰,同時,床尾及床側滿滿的儲物量,充分滿足主人使用需求。 No.6 衛生間 主衛用墻體隔開馬桶區和臺盆、淋浴間,干區和濕區互不打擾,減輕日常清潔打掃的壓力,淺色的瓷面也令空間更顯寬敞。 公衛則將臺盆區外置,實現干濕分離,雅奢石材構建沉穩大方的視感。


















免費
免費申請戶型規劃
專屬設計師免費1對1全程服務
已經有3768人申請
24小時免費咨詢電話
400-8800-618
你家預算
108080元