
時光悅酩128㎡ | 理性秩序中,藏著滿滿溫度的家
項目信息
PROJECT INFORMATION
地址/ 時光悅酩
城市/ 中國 杭州
戶型/ 三室兩廳
面積/ 128㎡
風格/ 意式極簡
設計施工/ 浙江南鴻裝飾
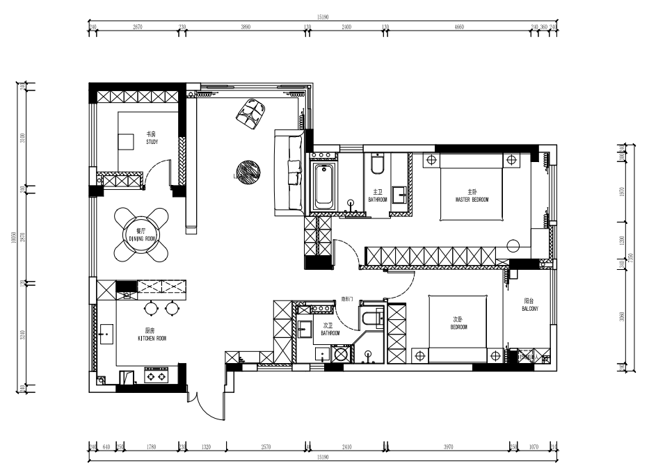
作品前言 ABOUT HOME 本案空間鋪展干凈的白色底質,大量棕色軟裝及木作增添溫暖感。格局上做經典LDK設計,將廚房完全打開,形成開闊明亮的公共區域,動線自如,家庭成員間的互動也可隨時展開。空間內冷暖色調和諧搭配,展現高級而儒雅的氣質。 戶型方案 LAYOUT DESIGN 實景呈現 CASE APPRECIATION No.1 玄關 溫潤的木色塑造了入戶的主視覺,端景部分引入時髦的斯卡帕元素和鏤空手法,木與黑交織出深邃而溫暖的形態,為整個家的風格定調。 No.2 客廳 客廳低飽和度的配色,釋放著生活的呼吸感與輕盈韻律。沙發、茶幾、地毯穩健錨定視覺中心,自然光灑擁入室內,柔和鋪陳每一寸角落。 結構上的清晰線條,為空間勾勒出寧靜的輪廓。設計的意義,不僅在于交付出一個“好看”的空間,更在于為居者提供一種可呼吸、可感受的日常氛圍。 克制的材質選擇與協調的色彩搭配,讓空間回歸舒適與功能的本質。電視背景墻以未做滿的形式留出一定視覺余裕,圓潤轉角增添柔潤。淺木飾面的質樸肌理與素雅色調,化解了儲物柜的體量感,兼具實用與輕盈之美。 No.3 餐廳 客餐廳在色調上保持了低飽和度的統一性,視覺連貫,空間更顯整體。無需跳躍的亮色,細微的明暗變化就已足夠營造寧靜舒緩的起居氛圍。 光感豐沛的餐廳空間,自帶著無限的通透與活力。圓桌圍攏家人的情感互動,烘托親密無間的氛圍。一側做電器高柜,既完善餐廚功能,又維持了立面的整潔利落。 真正的好空間懂得在晨昏日常中與人心對話——晨早時光亮勻透,傍晚時沉靜綿長,燈光與自然交織出動人的韻律,無聲撫慰著落班歸家的主人。 No.4 廚房 餐廚之間,設計師利用原有的承重柱,延伸出島臺兼吧臺。石材臺面以美麗的紋理勾勒低奢質感,明亮的光線漫進室內,使區域更顯敞闊大氣。 開放式廚房選用深灰色櫥柜,深色調賦予空間沉穩的高級感,也更耐臟好打理。嵌入式廚電保持立面整潔,延續空間的秩序感。 No.5 臥室 主臥內,棕色的床品、床頭柜,同背景墻的木飾面、格柵彼此呼應,整體色調沉穩而協調,睡臥氛圍格外溫潤寧靜。 通過材質本身的組合與變化,臥室背景墻的細節質感也得到了提升。 飄窗設計為臥榻休閑區——午后小憩、靜心閱讀,亦或與家人品茶閑談,這里皆是理想的一隅。同時,臥榻向床尾空間自然延伸出女主人的梳妝區,結構的流暢轉折,以一氣呵成的整體性,帶來視覺的絕對舒適。 No.6 書房 書房定位為一處專屬電競游戲空間,鮮明的燈帶線條嵌于柜子里外與桌沿,幽藍、幻紫的光色,營造科技感十足的氛圍。



















免費
免費申請戶型規劃
專屬設計師免費1對1全程服務
已經有3762人申請
            24小時免費咨詢電話
400-8800-618
		你家預算
108080元