
當現代風的簡約撞上輕奢風的精致,這個120㎡的單身空間相當不簡單!

本案為世貿麗晶城120方現代輕奢風格設計,業主為一名單身男青年,目前家里常住1人,父母偶爾來住,考慮到將來的生活還是保留了三房的功能,期待能擁有一個簡約時尚、素雅大方的家。
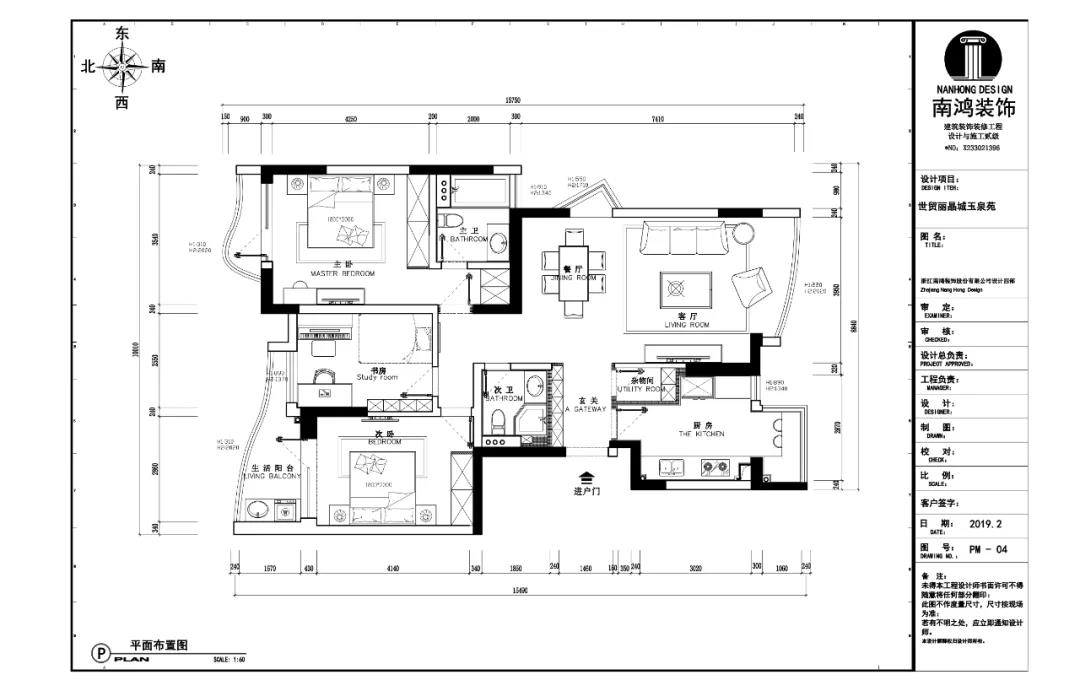
戶 型 圖

設計說明:增加了儲物間;廚房功能放大;考慮到以后居住人口的增加,保留了原始房間。
玄 關 Foyer

入戶正對餐廳,過道處設計中部與底部留空的玄關柜滿足玄關和公共區域的收納。過道的另一側用KD板包覆,儲物間做了隱形門處理。
客 廳 Living Room

客廳,高級灰的主調柔和而舒適,軟裝上的色彩比較豐富,搭在一起卻絲毫不顯突兀。


皮質、絨布、金屬、石材、墻漆......不同的材質被融合在一個空間內,共同呈現出時尚的現代輕奢基調。


不同階度的灰色傳遞出和諧統一的視覺體驗,各色的抱枕和裝飾畫又豐富了空間層次,顯得溫暖而有活力。

客廳望向餐廳視角,開放的布局提升空間使用率。
餐 廳 Dining Room


餐廳,深色大理石臺面餐桌搭配灰、藍布藝餐椅,保證了舒適的用餐體驗。
廚 房 Kitchen

廚房選用便于清潔的大尺寸深色地磚,操作臺呈平行布局,一側延伸至陽臺設計成簡易的吧臺,拓展功能空間。
臥 室 Bedroom


主臥,在黑與藍的深沉組合中點綴了活力的芥末黃,幾何紋理的墻布裝飾不作浮華堆砌,完美契合男生硬朗的氣質。

次臥留作客房使用,父母來時可以住,所以整體布置簡單,色彩是素凈的暖灰,提供最基本的使用功能即可。
| 地址:世貿麗晶城
| 面積:120㎡
| 風格:現代輕奢
| 設計施工:浙江南鴻裝飾
下一篇:客廳裝修的五大常見誤區
免費
免費申請戶型規劃
專屬設計師免費1對1全程服務
已經有3780人申請
24小時免費咨詢電話
400-8800-618
你家預算
108080元