
242㎡大平層,LDK一體化打造全方位自由社交領域!

作品·信息
地址:相江公寓
城市:中國 杭州
戶型:四室兩廳
面積:242㎡
風格:現代輕奢
設計施工:浙江南鴻裝飾
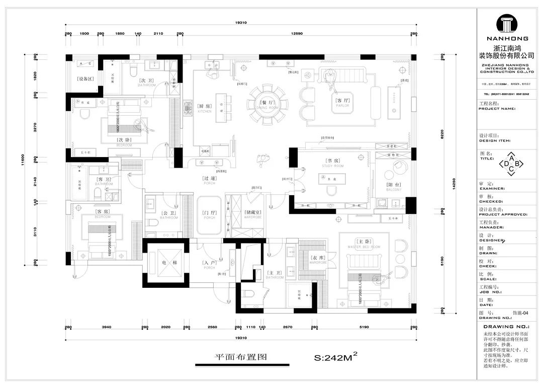
業主夫妻倆是在杭州做鞋業批發生意,喜歡品質高、有硬朗現代感的設計,風格最終定位在了現代輕奢。 整體用材上,考慮到空間需求的檔次與格調,采用了巖板電視墻和大量皮革金屬元素,天然科技木護墻也是環保性的一種彰顯。簡約無主燈設計,“見光不見燈”的效果提升空間的氛圍感,不銹鋼嵌條增添精致。色調上軟硬裝彼此呼應,保證空間的和諧統一。 #戶型改造分析 ▲原始戶型圖 ▲平面設計圖 設計改動: ①入戶右邊公共空間大膽嘗試將廊道內退,以增加儲藏空間; ②通過書房內收增加了獨立的生活陽臺; ③業主兒子結婚后可能會過來一起居住,所以把北面給兒子準備的套房做了空間擴充,滿足小夫妻的居住需求; ④將原有的廚房并入北面套房,餐廚空間一起南移,客餐廚一體化并增設島臺; ⑤主臥考慮到女主人的收納需求,在主衛保留雙臺盆功能的前提下,將衛生間進行了內收處理,構建出衣帽間區域。 過道兩側打造門廳的儲物系統 深色科技木柜門與不銹鋼長條拉手 整潔的立面上營造了錯落的層次 視線一路延伸至盡頭的端景 讓每次歸家都具備了儀式感 空間擁有豐富而和諧的紋理材質變化 兩側都留出適當的距離 保障觀影最佳效果與動線的流暢 塊面和線條共同構筑起穩定從容的秩序 懸浮巖板電視背景加之底層格柵面 為會客區創造大氣和沉穩的格調 成功地在含有功能性的形式美感中 融入與居者氣質相符的優雅藝術 軟硬裝在線條和色調上均做到高度呼應 自由暢快的家居空間 可以在宅家和社交之間隨心切換 空間布置圓頂和主燈增添更多氛圍 一體化設計模式保持了區域聯動交互 使餐廳既能承載一家人溫情的用餐時光 也可作為客廳的拓展區域使用 廚房內部采用金屬烤漆柜門 完美隱藏的廚電設施保持整潔利落的外觀 增設島臺并設計左右雙聯動金屬邊框移門 使餐廚空間更加地開放和實用 在開放而流暢的格局間 靈活便于塑造的場景功能隨之而來 除常規的備餐、烹飪外 也兼具了自由社交的可能 基于對一個舒適休憩環境的塑造 主臥空間盡量簡化了結構和裝飾 大面積運用溫和的中性色與質感硬包 外觀大氣規整,細節依然流露著精致 喧囂的外物在空間中得到自然消解 沉靜的力量為心靈帶來舒適和安詳 灰調石材全面呈現利落感受 寬大的長臺面加雙臺盆設計 輕松搞定清晨浴室繁忙難題




















上一篇:什么是有高級感的設計?
免費
免費申請戶型規劃
專屬設計師免費1對1全程服務
已經有3770人申請
24小時免費咨詢電話
400-8800-618
你家預算
108080元